Impressum
Datenschutz

©2024. RitschelPeter. Alle Rechte Vorbehalten.


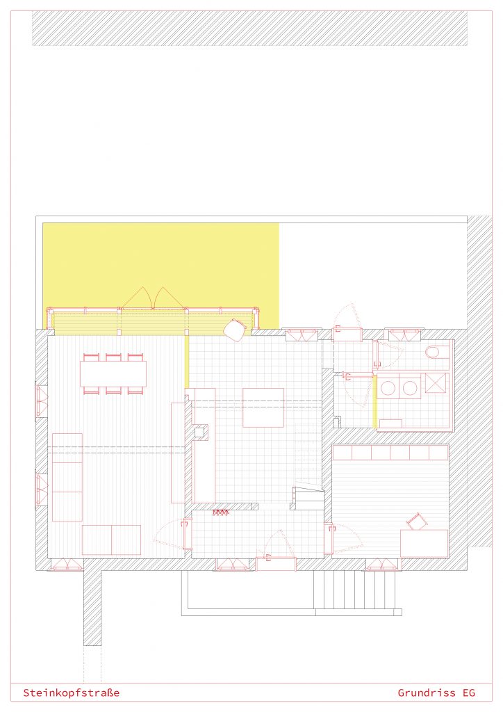
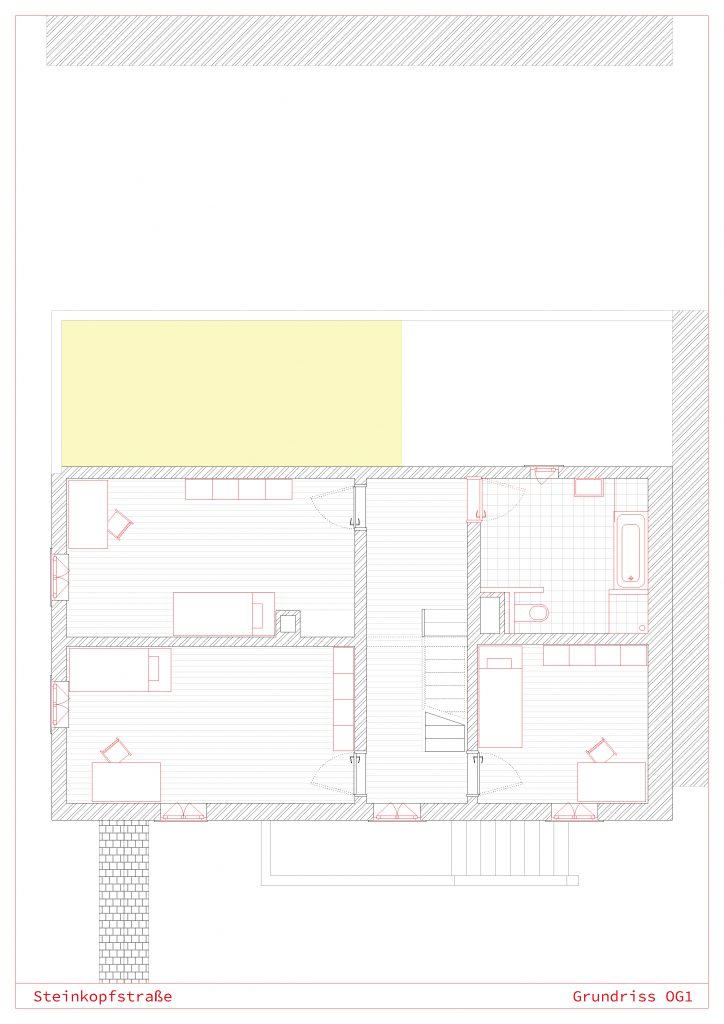
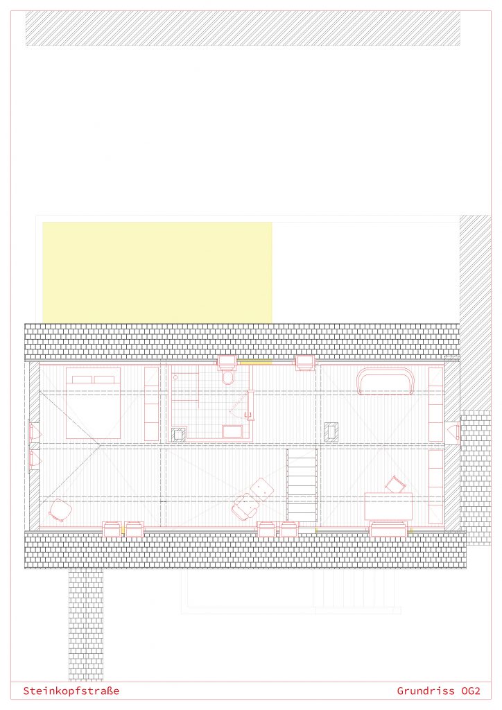
Umbau und Sanierung eines Kulturdenkmals in Wiesbaden

Leistungsphase 1-9

2026

Umbau

privat